Reno Ready

It'll take some money to fix up this $349,000 Upper East Side one-bedroom, but not as much as you might think

By Leah Hochbaum Rosner  | February 23, 2017 - 8:59AM
image

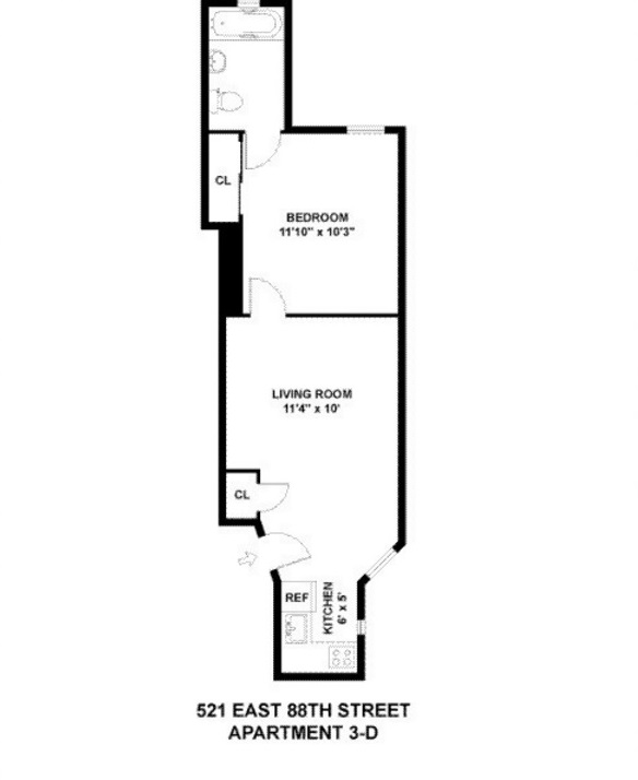
This $349,000 one-bedroom at 521 East 88th Street in Yorkville has quite a few features to recommend it, according to architect Kimberly Peck, including the fact that “the rooms look to be a pretty good size” and “there’s a fairly good amount of closet space.”

Still, in her opinion, the co-op unit definitely has a number off-putting elements, too—starting with a tiny, closed off, dated kitchen. “Nowadays, open kitchens seem to be everyone’s preference,” she says, explaining that people like to be able to interact with others while they wash dishes or pan-sear a steak.

Furthermore, “there’s no light,” she points out, noting that the living room’s single small window doesn’t do much to brighten the space. Plus, she notes that “the en-suite bathroom means that guests have to walk through your bedroom” to use the facilities, which can get awkward for a friend crashing on your couch for even the shortest of stints.

Here’s what Peck would do to update that prehistoric kitchen, as well as how she’d modernize the rest of the apartment. Her recommendations:

image

The living room 

The first thing she would do is demolish what she calls the “hideous” mirrored wall (and a small, strange strip of mirrored ceiling). “While the mirror does open up the space, it really dates things—it makes it look like it’s from 1975—and it’s not aesthetically pleasing,” she says.

Next, she’d replace the old-fashioned light fixture with a flush-mounted one (possibly a drum-type as she feels it'll look good here) that’ll add a contemporary feel to the space. “It is difficult to move fixtures if the ceiling is concrete,” she says. “So I’d replace the existing fixture with something more modern. As the ceilings are low, a flush-mounted fixture would maximize the ceiling height.”

Then, she’d remove the beat-up, burn-marked baseboards and install “a clean, flat, modern baseboard,” under which she’d hide all the wiring, which is currently exposed. She’d also replace the black outlets, which she says “really stick out” to her because they look very dark in this space, for ones that are white instead. (She’d also get new covers for the outlet covers and light switch.)

As for the walls, Peck says she’d go with light gray for this space to “make it look more modern” and add a bit of warmth. She’d paint the radiator to match so that it blends in with the walls and is less likely to stand out. As for the ceiling, she’d paint it white since that can make a ceiling feel higher. She’d paint the baseboards and trim white, too.

Peck says that she “can’t tell if the flooring is in good shape or not” from the photos. If it is, she’d suggest staining it darker so “it looks more modern.” Her recommendation: Do a test stain first on a small part of the floor to make sure it looks the way you want it to before you do the entire floor. If it isn’t in good shape, she’d replace it entirely. Peck likes a “wider plank engineered oak with a light grayish tone” in this space to play off of the gray walls. Peck believes it’ll add both a warmth and a sense of continuity to the room with its gray accents.

Then, she’d turn her attention to the bedroom door, replacing the beat-up old trim with paint that matches the baseboards. No need to replace it, but painting it black could be a bold choice that pays off. “Black doors with gray walls,” says Peck. “It would look pretty great." But, she notes, "black shows dust." 

Peck would remove the rickety old blinds and exchange them for a more modern solar shade that “you can see through,” she says. “You don’t want to draw attention to the area and broadcast the fact that this is your only little window in the whole room.” She’d go with an off-gray shade so it matches up with the walls.

She’d get a custom-made cover for the air-conditioner, too. The grimy old unit “is not very attractive,” she explains. So “if your budget affords it, a cover would be nice.”

Price: The cost of this metal drum flush-mount light is between $239 and $289 at Restoration Hardware. Peck thinks new baseboards should be around $1 per foot, plus $200 to $300 to install. These Lutron outlets are $12.97 each at Home Depot. These outlet covers are $4.38 each. This wall plate (new light switch cover) is also $4.38. A gallon of Benjamin Moore Misty Gray for the walls and radiator is $69.99. A gallon of Decorator’s White for the ceiling, baseboards and trim is also $69.99. Staining the floors, Peck believes, should be around $1,500. Getting a new wide-plank oak floor installed from a place like LV Wood should cost around $30 per square foot, she says, so probably around $18,000 for the entire apartment. A gallon of Benjamin Moore’s Universal Black for the bedroom door is $69.99. This solar shade is $59.99 at Bed Bath & Beyond. Peck estimates that a custom-made A/C cover should run you around $400-$500. Labor, including taking down the mirrored wall, will be more.

image

The kitchen

Although you only get a small glimpse of the kitchen from one of the living room photos, that glimpse is all Peck needs to know that she’d gut the room completely. “It’s just really dated,” she says, citing the old-school appliances and linoleum floor that are visible in the picture.

The first thing she’d do is knock down the wall dividing the living room from the kitchen to make the area more open. “If you take down that little wall, the living space will look so much larger,” says Peck. 

In addition, she says, getting rid of the wall will help give you access to the kitchen’s tiny window, thereby giving the unit some more sorely needed light. Knocking down the wall will necessitate relocating the intercom, but Peck says that the building should have a service provider in place in order to help you do that.

She’d then junk the linoleum tiles and do one of two things—either extend the wood flooring from the living room into the kitchen or get porcelain tiles. She likes a faux concrete or faux steel look. Both are grayish and will tie in nicely with the wall color. She’d also get new stainless steel appliances—a new refrigerator (she recommends a counter-depth one here as it won’t protrude past the cabinets and will therefore make the small space feel a little more roomy), a new stove, and a new microwave, as well as a new undermount sink and faucet.

She’d rip out whatever cabinetry is currently there and replace it with new budget-friendly IKEA cabinets. She’d go with white ones here since she worries that dark cabinets in a space already lacking in light will result in an overwhelmingly dim, gloomy room. White cabinets “will brighten up the place,” she says. She’d then get light gray Quartz countertops “to add some color” to the space. As for the backsplash, she recommends white subway tile to “keep it clean and economical.”

Price: Peck thinks you can buy the faux concrete or steel porcelain tiles for around $7 a square foot from a place like Nemo Tile. This 24-inch counter-depth fridge is $1,309 at AJMadison.com. This 24-inch gas range is $980. This over-the-range microwave is $357.75 at Home Depot. This stainless steel undermount sink is $150.09 at Home Depot. This Grohe kitchen faucet is $471.88. Peck thinks you can get all the cabinets you need from IKEA for around $2,500. She believes the countertops can be had for around $1,200 for the whole kitchen. Peck also thinks that you can get the subway tile for around $4 per square foot. Labor, including knocking down the wall to open up the kitchen, will add on to these costs.

image

The bedroom

Peck pointed to the fact that the room has a decent amount of storage—what with the closet and overhead cabinet. “But a personal pet peeve of mine are sliding doors in closets,” she says. “I hate them. They reduce your ability to actually use your storage.” She recommends regular swinging doors, instead. And, if budget allows, she’d blend the closet and cabinet up top into a single closet with doors going all the way to the top. You’d probably have to get those custom made because of their irregular size, so they’d likely be pricier than typical doors.

For the paint, Peck would once again go gray for the walls and radiator, white for the ceiling and trim, and black for the door to the bathroom to “keep it consistent with the living area.” She’d also get rid of the mirror on the back of the door and buy a leaning one on the floor, instead. And while those might seem like they’d be liable to tip over from the slightest bump, Peck says that “if the mirror is large enough, they are [actually] pretty stable.” Additionally, she says that many leaning mirrors of this kind “have stabilizing hardware that attaches to the wall even though they do not hang.” She’d also send the worn-out baseboards to the scrap heap, get new ones and paint them white. In addition, she’d replace the blinds with a similar solar shade to the one she plans on getting for the living room. It’ll let the light in and make the room feel a little brighter.

For some reason, the flooring in the bedroom runs in a different direction than the flooring in the living room. To help with the unit’s overall symmetry, Peck recommends turning the flooring in the same direction as the living room’s flooring—if you’re putting in new floors that is, as typically, you cannot reuse flooring that you’ve already pulled out as "that does not work well,” she says, meaning that much of the flooring would likely be broken in the process.  She also suggests doing the same thing to this floor as you do in the living room—if you stain it darker there, or replace with wider plank oak, do the same in the other rooms. 

Next, she’d get a custom air-conditioner cover here too. She recommends one that extends the full width of the window, and you could add a bookshelf so it looks like just another piece of furniture.

As for lighting, Peck suggests wall sconces on either side of the bed. They look modern and they keep lamps off the floor so you’ll have more room to move.

Last, Peck would get rid of the teeny tiny shelves in the corner that look as though they can’t really hold a whole lot. 

Price: Peck thinks that replacing the sliding doors with regular swinging closet doors should be around $1,500. Replacing them with custom tall doors going all the way to the ceiling will be more, probably $2,000 to $3,000. A gallon of Benjamin Moore Misty Gray for the walls and radiator is $69.99. A gallon of Decorator’s White for the ceiling, baseboards and trim is also $69.99. A gallon of Benjamin Moore’s Universal Black for the bathroom door is $69.99. This leaning mirror is $159.99 at Bed Bath & Beyond. This solar shade is $59.99 at Bed Bath & Beyond. Peck estimates that staining the floors in the unit should be around $1,500. A new wide-plank oak floor installed from a place like LV Wood should cost around $30 per square foot, she says, so probably around $18,000 for the entire apartment. Peck thinks that a custom air-conditioner cover should cost around $400-$500. Maybe more. This wall sconce is $149 at Restoration Hardware. Labor, including turning the flooring to run in the same direction as the living room flooring, will be more.

image
The bathroom

This bathroom isn't a lost cause by any means. "The pedestal sink looks to be in good condition. The cast-iron tub does too,” she says. Keeping both will keep costs down, says Peck. The toilet might be fine to keep, too, though it's hard to tell from the photo.

She would get a new medicine cabinet here—something with a bit of storage since you don’t have any with the pedestal sink.

Next, she’d lose the shower curtain and rod and instead purchase “a simple glass partition that goes halfway across the tub.” She feels that it’ll give the space a cleaner, neater look overall.

She’d go with an unassuming subway tile (if you’re on a tight budget) or a light gray porcelain to tie in with the gray walls in the remainder of the unit (if you can spare a little more). She’d also continue the tile up all the way to the ceiling so there won’t be any walls left to paint. Then she’d paint the ceiling white, as in the rest of the unit.

As for lighting, she’d go for “a linear, bar-type fixture” for this space. The light from that, along with actual sunlight from the window, should be enough to help you put your face on in the morning.

Price: This Toto toilet (if needed) is $182.31 at Home Depot. This IKEA medicine cabinet is $49.99. This clear glass panel for the shower is $371.28 at Lowe’s. Peck says that subway tiles should run you around $2,000 in this bathroom. Porcelain tiles should be more, around $3,000 or so. A gallon of Decorator’s White for the ceiling is $69.99. This bar-type light from Lightology is $241.50.

 

 

Brick Underground articles occasionally include the expertise of, or information about, advertising partners when relevant to the story. We will never promote an advertiser's product without making the relationship clear to our readers.

topics: