A Boerum Hill duplex with private outdoor space, for $850,000
This well-priced duplex has a lot of creature comforts like outdoor space and a working fireplace.
It's not every day you find a two-bedroom, two-bath apartment with nice little extras in Boerum Hill and if you do, it's pretty rare it's under $1 million. But 559 Warren St., #2, is just that.
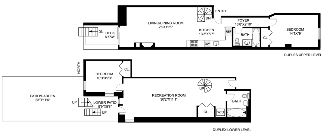
Listed for $850,000 with $770 maintenance, this duplex co-op measures 1,100 square feet, and has a private outdoor space and a wood-burning fireplace. And, it's pet-friendly. (The median asking price for the neighborhood is a cool $1,572,500, according to StreetEasy, just FYI.)

The top floor has an open layout, with plenty of room for a dining area, as well as high ceilings and hardwood floors.

The kitchen features wood cabinets, subway tile backsplash, updated stainless steel appliances, and storage space.

Also on this level is a bedroom with a large closet and a full bathroom.

The downstairs also has an open floor plan and is currently used for the master suite, although it could also be used as a family room. A nice touch: the floors have radiant heat.

There's another bedroom on this floor, as well as a full bath, a washer/dryer, and additional storage.


The large private backyard can be accessed from both levels.

If you're considering living in an apartment that occupies a basement level (this one does), it's always good to make sure it's a legal basement apartment.

In any direction there are options for shopping, dining and entertainment, from both chain and independent businesses.
The co-op is very conveniently-located, a few blocks from Atlantic Center/Barclays Arena, where you can catch multiple subway lines as well as the Long Island Rail Road.
You Might Also Like
